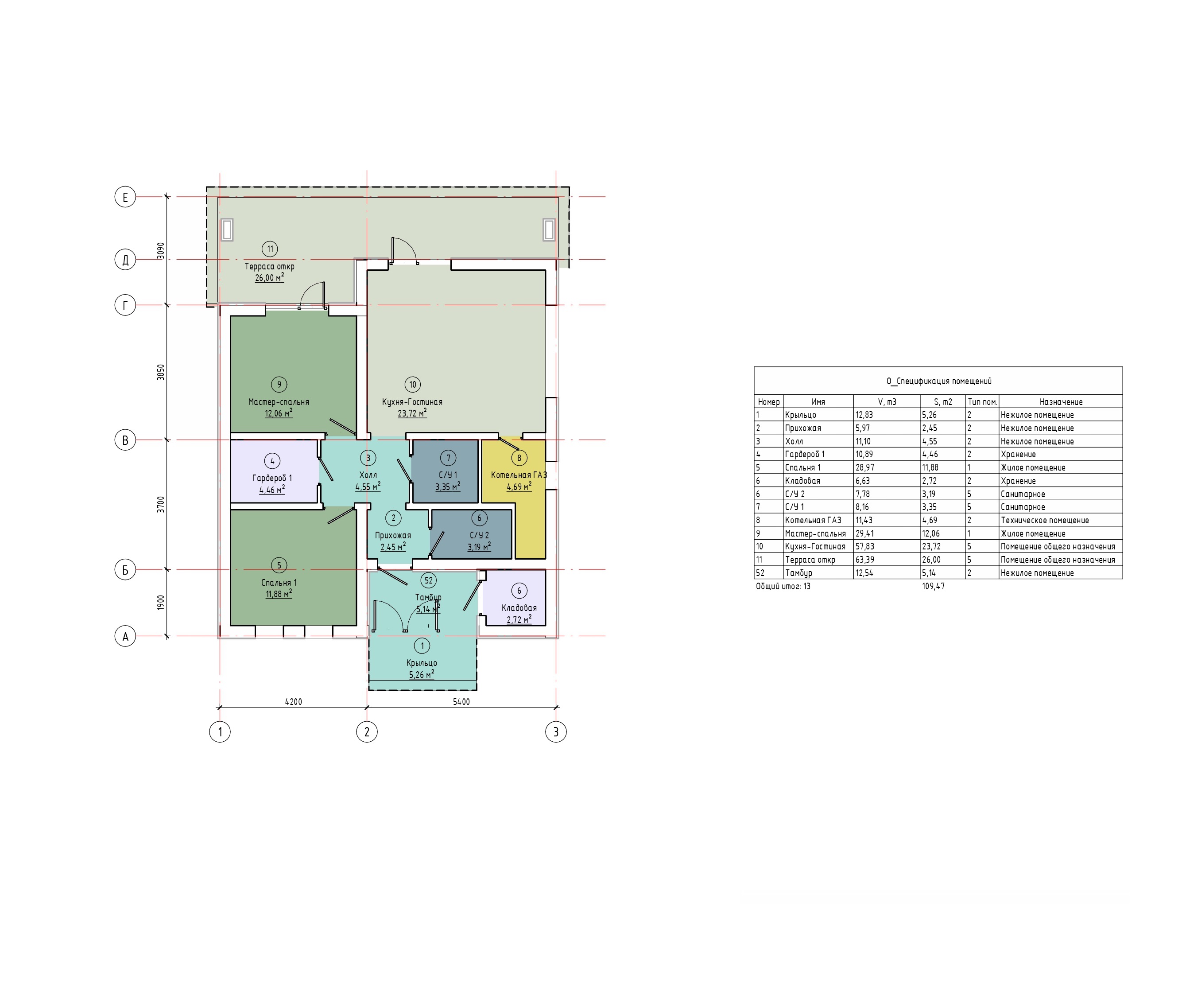
Проект «НС-109 Дачный домик» - это одноэтажный дом площадью 104,2 м² из газобетонных блоков, рассчитанный на 2 спальни и 2 санузла. Дом встречает благородной сдержанностью классического стиля. Фасад, облицованный декоративной плиткой, смотрится элегантно и современно. Двускатная кровля, укрытая битумной черепицей, придаёт силуэту законченность и надёжно защищает от капризов погоды. Широкая терраса приглашает выйти на свежий воздух — здесь так и просятся уютные вечерние чаепития или утренний кофе под пение птиц. Дом построен с учётом требований для постоянного проживания. Проект разработан с учётом современных стандартов энергоэффективности и безопасности. Для уточнения деталей планировки, комплектации или условий строительства рекомендуется обратиться напрямую в компанию «НОВО-СТРОЙ».


















